Technisch ontwerp

Technisch ontwerp

Het technisch ontwerp (TO) is een cruciale stap in elk bouwproject. In deze fase wordt het definitief ontwerp vertaald naar een technisch en constructief uitvoerbaar plan. Jobse ondersteunt aannemers, architecten, vastgoedeigenaren, woningcorporaties en projectontwikkelaars bij de uitwerking van een technisch ontwerp dat niet alleen voldoet aan alle regelgeving, maar ook praktisch, efficiënt en kostenbewust is.

Van definitief ontwerp naar een gedetailleerd technisch plan

Het technisch ontwerp is de basis waarop de uitvoering van een project wordt gebouwd. We zorgen ervoor dat constructieve opbouw, materiaalkeuze en bouwtechnische details helder worden uitgewerkt, met aandacht voor energieprestatie-eisen (BENG), brandveiligheid, bouwfysische normen en duurzaamheidsrichtlijnen.

Bij Jobse hanteren we een praktijkgerichte aanpak. We analyseren het definitief ontwerp grondig en stemmen technische keuzes af met alle betrokken partijen. Dit voorkomt verrassingen in de uitvoeringsfase en helpt om het project binnen budget en planning te houden.

Wat omvat een technisch ontwerp?

Wat omvat een technisch ontwerp?

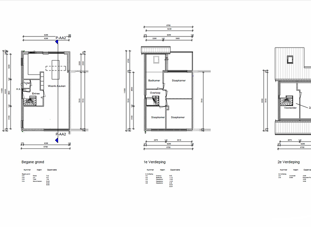
Een volledig technisch ontwerp bevat alle essentiële bouwkundige en constructieve details, zoals:

  • Gedetailleerde bouwtekeningen met constructieve doorsneden en detailleringen.
  • Bouwfysische analyses, zoals isolatiewaarden, ventilatie-eisen en daglichttoetreding.
  • Materialisatie en technische specificaties voor een efficiënte realisatie.
  • Integratie van installaties zoals verwarming, ventilatie en elektrotechnische voorzieningen.
  • 3D-BIM-modellen voor optimale samenwerking tussen architect, aannemer en installateurs.

Dankzij deze gedetailleerde uitwerking is het technisch ontwerp direct bruikbaar in de aanbestedings- en uitvoeringsfase.

Van bouwkundig ontwerp naar een haalbare realisatie

Van bouwkundig ontwerp naar een haalbare realisatie

Een goed technisch ontwerp is meer dan alleen een vertaling van een schets naar technische details. Het is een praktische handleiding voor de realisatie van het project. Door vanaf het begin rekening te houden met uitvoering, materiaalkeuze en regelgeving, voorkomen we faalkosten en zorgen we voor een soepel bouwproces.

Bij Jobse werken we nauw samen met alle betrokken partijen en houden we actieve controle over de kwaliteit van het ontwerp. Tijdens de uitwerking voeren we periodieke controles uit om te garanderen dat alles voldoet aan de gestelde eisen en wensen.

Technisch ontwerp als solide basis voor jouw bouwproject

Een goed technisch ontwerp is de sleutel tot een soepel verlopend bouwproces. Jobse zorgt voor een slimme, doordachte en uitvoerbare uitwerking die voldoet aan alle bouwtechnische en wettelijke eisen. Dankzij onze gestructureerde aanpak en expertise in bouwtechniek kunnen opdrachtgevers rekenen op een hoogwaardig ontwerp dat direct klaar is voor uitvoering.

Onze werkwijze

Stap 1: Inventarisatie en analyse

We starten met een grondige analyse van het definitief ontwerp en bespreken alle technische randvoorwaarden en regelgeving.

Stap 2: Uitwerking technisch ontwerp

Onze bouwkundigen en constructeurs werken het ontwerp uit in een gedetailleerd 3D-model, inclusief alle technische specificaties en berekeningen.

Stap 3: Controle en optimalisatie

We toetsen het ontwerp aan de geldende normen en regelgeving en optimaliseren details voor een efficiënte uitvoering.

Stap 4: Begeleiding naar uitvoering

Het technisch ontwerp wordt overgedragen aan de aannemer en kan desgewenst verder worden uitgewerkt tot een uitvoeringsgereed ontwerp (UO).

Wil je een technisch ontwerp laten maken dat voldoet aan de hoogste standaarden?

Neem contact op met ons en laat je project door onze experts uitwerken.
Contactformulier